ДИЗАЙН-ПРОЕКТ ПРЕЧИСТЕНКА
PARAMETRIC BOX
СПАСИБО ЗА ВНИМАНИЕ!
PARAMETRIC BOX
01 ПРИХОЖАЯ
Инсталляция будет отражаться в зеркале на противоположной стене, и будет видна как только откроется дверь

ПЛАНИРОВКА ПРИХОЖЕЙ


У ВХОДА УСТАНОВЛЕНА
Система управления умным домом с дисплеем
Кнопки включения освещения
Регулятор электрических полов
GIRA*
В ШКАФУ РАСПОЛОЖЕНЫ
Необходимые щитки для работы электричества и системы "Умный дом"
*(или качественные аналоги luxury-сегмента)
контур теплого пола
ЗОНА ПРИЕМА ГОСТЕЙ
ЗОНА ОЖИДАНИЯ
У ЗЕРКАЛА в полу
Розетки GIRA* с USB и Type-C
Инсталляция будет отражаться в зеркале на противоположной стене, и будет видна как только откроется дверь

02 СИГАРНАЯ
ПЛАНИРОВКА СИГАРНОЙ
ПЕРЕГОВОРНАЯ
БАРНАЯ ЗОНА
Место, чтобы взять напиток и выбрать сигару
В ШКАФЫ ВСТРОЕНЫ
Система колонок для создания стереозвука в помещении.
Звук регулируется с помощью "Умного дома"
В ШКАФУ СПРЯТАНЫ
Розетки GIRA* с USB и Type-C
* или качественные аналоги luxury-сегмента
У ВХОДА
Система "Smart Home"
Система управления умным
домом GIRA*
В БАРНОЙ ЗОНЕ
Розетки GIRA* с USB и Type-C
ВНУТРИ СЕКЦИИ СЛЕВА
Система управления умным домом GIRA* расположение на расстоянии вытянутой руки

В СТОЛЕШНИЦЕ
Встроенная тройная розетка
Рекомендуемое расположение огнетушителя
В ПОЛУ
Встроенные двойные розетки с USB и Type-C
В ПОТОЛКЕ
Вытяжная вентиляция, декорированная под источник света
В ПОТОЛКЕ
Вытяжная вентиляция, декорированная под источник света
Система колонок для создания стереозвука
Система встроенных розеток в том числе в полу вдоль шкафа
НАПРОТИВ ДИВАНА РАСПОЛОЖЕНА Динамическая Лампа BE WATER
под защитным стеклом
ПРИ ДВИЖЕНИИ
Лампа создает
световой рисунок
водных поверхностей
СВЕТОВЫЕ ФИЛЬТРЫ
Позволяют настроить отображение в виде
ОГНЯ, ВОДЫ, ЗЕМЛИ И ВОЗДУХА
ЗВУК
АРОМАТ
В ЗОНЕ БАРА РАСПОЛОЖЕН Встроенный бар и шкаф для сигар и сигарных атрибутов
РЯДОМ СО ВХОДОМ
Инсталляция из нержавеющей стали
В ВСТРОЕННОМ ШКАФУ
Открытый бар и секции для кальянов
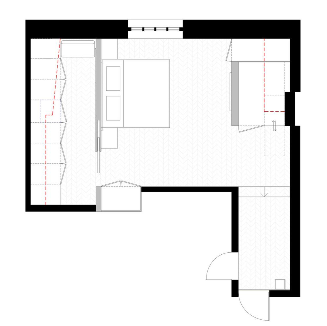
03 спальня
ПЛАНИРОВКА
МАСТЕР-СПАЛЬНИ
КОРИДОР
ГАРДЕРОБНАЯ
У КРОВАТИ, ЗА ТЕЛЕВИЗОРОМ,
В ГАРДЕРОБНОЙ УСТАНОВЛЕНЫ
Розетки GIRA* с USB и Type-C
(или качественные аналоги
luxury-сегмента)

ЗА ТЕЛЕВИЗОРОМ
Скрытое помещение. Дверь в него максимально незаметна в интерьере, замок - электронный.
Предлагается разместить систему УМНЫЙ ШКАФ
ЗОНА СПАЛЬНИ
ЗА ГРАНИЦЕЙ
Высота помещения
меньше 1800 мм
У ДВЕРИ И ПРОХОДА УСТАНОВЛЕНО
Регулирование освещения и
Система управления умным домом GIRA*
В ШКАФУ УСТАНОВЛЕНО
Цифровой замок для двери GIRA*


ПАРОВОЙ ШКАФ air dresser
2
3
1
СТЕКЛЯННАЯ ДВЕРЬ В ГАРДЕРОБНУЮ СОЗДАЕТ ИЛЛЮЗОРНОСТЬ ПРОСТРАНСТВА
04 ванная
ПЛАНИРОВКА МАСТЕР-САНУЗЛА


В ЗОНЕ ОТДЫХА
Розетки GIRA* с USB и Type-C
У ВХОДА УСТАНОВЛЕНЫ
Система управления умным
домом GIRA*
Регулятор теплых полов
Регулирование освещения

В ПАНЕЛЬ ВСТРОЕНЫ
Система колонок для создания стереозвука в помещении.

РЯДОМ С РАКОВИНОЙ И ВАННОЙ
Влагозащитные розетки GIRA* с USB и Type-C
c технологией Pop-Up
зеркало с подогревом
В НИШИ ВСТРОЕНЫ
Регуляторы освещения

* (или качественные аналоги lxury-сегмента)
**Теплый пол по периметру помещения и на мраморном подиуме

РАКОВИНА СО СКРЫТЫМ СЛИВОМ
Позволяет уменьшить ее вертикальные габариты
СТЕКЛО В ДУШЕВОЙ
Градиентное с затемнением к низу, выполненное по сертификату CE SGCC

ЗЕРКАЛО НАД РАКОВИНОЙ
Задняя подсветка и встроенный обогрев зеркала не дают ему запотеть

05 САН. УЗЕЛ
ПЛАНИРОВКА САНУЗЛА
У ДВЕРИ И В ДУШЕ УСТАНОВЛЕНО
Влагозащитные выключатели
GIRA* (или качественные аналоги
luxury-сегмента)


В СТЕНУ У РАКОВИНЫ ВСТРОЕНЫ
Система управления умным
домом GIRA*
Розетки GIRA* с USB и Type-C
Влагозащитные
Закрыты коснтрукцией c системой
push-and-pull
* (или качественные аналоги lxury-сегмента)


зеркало с подогревом
ОТКРЫТЬ
ВНУТРИ ШКАФА РАСПОЛОЖЕНЫ СТИРАЛЬНАЯ И СУШИЛЬНАЯ МАШИНА. МЕХАНИЗМ ОТКРЫВАНИЯ ДВЕРИ ПОЗВОЛЯЕТ СПРЯТАТЬ ДВЕРЦУ В БОКОВОЕ ОТВЕРСТИЕ
СБОКУ ОТ УНИТАЗА РАСПОЛОЖЕНА
Скрытая система очистки унитаза,
дверца с механизмом Push-and-Pull
У ДУШЕВОЙ
Точечное освещение LED-подсветкой внутри стекла дает разные варианты освещения
06 ГОСТИНАЯ
НАВЕРХУ
Предусмотрена зона для памятных подарков и предметов коллекционирования
НАВЕРХУ
Предусмотрена зона для памятных подарков и предметов коллекционирования
В СТЕНУ ВСТРОЕН
Винный холодильный шкаф Miele
В СТЕНУ ВСТРОЕН
Винный холодильный шкаф Miele
ЗА КУХОННОЙ ЗОНОЙ
Винтовая лестница наверх

НАД СТОЛОМ
Линейный светильник в стиле Davide Groppi
ЗА КУХОННОЙ ЗОНОЙ
Винтовая лестница наверх

НАД СТОЛОМ
Линейный светильник в стиле Davide Groppi
СИГАРНАЯ
МАСТЕР-САНУЗЕЛ
ПРИХОЖАЯ
САНУЗЕЛ
ГОСТИНАЯ
СПАЛЬНЯ